FORK & EXTENSION FORK погрузчика электрического Hyundai 15/18/20BT-7
FORK & EXTENSION FORK погрузчика электрического Hyundai 15/18/20BT-7 со списком деталей и комплектацией. Каждую деталь можно приобрести в наличии и под заказ с дотавкой по всей России
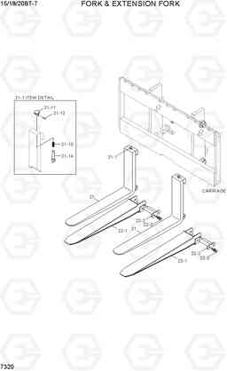
Код подсистемы:7320
Наименование:FORK & EXTENSION FORK
Версия:
FORK & EXTENSION FORK 15/18/20BT-7
| Поз. | Код | Наименование | Кол | Прим. | |
|---|---|---|---|---|---|
| 21 | 64FY-12010 | Вилка в сборе (750) | 2 |
CAS,1.5~1.8TON
|
|
| 21 | 64FY-12020 | Вилка в сборе (850) | 2 |
CAS,1.5~1.8TON
|
|
| 21 | 64FY-12030 | Вилка в сборе (900) | 2 |
CAS,1.5~1.8TON
|
|
| 21 | 64FY-12040 | Вилка в сборе (1050) | 2 |
CAS,1.5~1.8TON
|
|
| 21 | 64FY-12050 | Вилка в сборе (1200) | 2 |
CAS,1.5~1.8TON
|
|
| 21 | 64FY-12060 | Вилка в сборе (1350) | 2 |
CAS,1.5~1.8TON
|
|
| 21 | 64FY-12070 | Вилка в сборе (1500) | 2 |
CAS,1.5~1.8TON
|
|
| 21 | 64HM-11010 | Вилка в сборе (900) | 2 |
CAS,2.0TON
|
|
| 21 | 64HM-11020 | Вилка в сборе (950) | 2 |
CAS,2.0TON
|
|
| 21 | 64HM-11030 | Вилка в сборе (1000) | 2 |
CAS,2.0TON
|
|
| 21 | 64HM-11040 | Вилка в сборе (1050) | 2 |
CAS,2.0TON
|
|
| 21 | 64HM-11050 | Вилка в сборе (1150) | 2 |
CAS,2.0TON
|
|
| 21 | 64HM-11060 | Вилка в сборе (1200) | 2 |
CAS,2.0TON
|
|
| 21 | 64HM-11070 | Вилка в сборе (1350) | 2 |
CAS,2.0TON
|
|
| 21 | 64HM-11080 | Вилка в сборе (1500) | 2 |
CAS,2.0TON
|
|
| 21 | 64HM-11090 | Вилка в сборе (1600) | 2 |
CAS,2.0TON
|
|
| 21-1 | K2PK-M | PIN ASSY (1,5 ~ 2.5ton) | 1 | ||
| 22 | 69FJ-81010 | доб вилка в сборе (1300L) | 2 |
1.5~1.8TON
|
|
| 22 | 69FJ-81020 | доб вилка в сборе (1500L) | 2 |
1.5~1.8TON
|
|
| 22 | 69FJ-81030 | доб вилка в сборе (1700l) | 2 |
1.5~1.8TON
|
|
| 22 | 69FD-81010 | доб вилка в сборе (1300L) | 2 |
2.0TON
|
|
| 22 | 69FD-81020 | доб вилка в сборе (1500L) | 2 |
2.0TON
|
|
| 22 | 69FD-81030 | доб вилка в сборе (1700l) | 2 |
2.0TON
|
|
| 22-1 | 69FJ-81100 | доб вилка (1300L) | 1 |
1.5~1.8TON
|
|
| 22-1 | 69FJ-81200 | доб вилка (1500L) | 1 |
1.5~1.8TON
|
|
| 22-1 | 69FJ-81300 | доб вилка (1700l) | 1 |
1.5~1.8TON
|
|
| 22-1 | 69FD-81100 | доб вилка (1300L) | 1 |
2.0TON
|
|
| 22-1 | 69FD-81200 | доб вилка (1500L) | 1 |
2.0TON
|
|
| 22-1 | 69FD-81300 | доб вилка (1700l) | 1 |
2.0TON
|
|
| 22-2 | 69FJ-81500 | LOCKING PIN | 1 | ||
| 22-3 | S037-102026 | Болт | 1 | ||
| N21-11 | KNOB-M | KNOB | 1 | ||
| N21-12 | RP-M | контактный проката | 1 | ||
| N21-13 | K2S-M | Пружина | 1 | ||
| N21-14 | K2PIN-M | Палец | 1 |

