ELECTRIC 3 погрузчика дизельного Hyundai 35/40/45D-9A,50DA-9A
ELECTRIC 3 погрузчика дизельного Hyundai 35/40/45D-9A,50DA-9A со списком деталей и комплектацией. Каждую деталь можно приобрести в наличии и под заказ с дотавкой по всей России
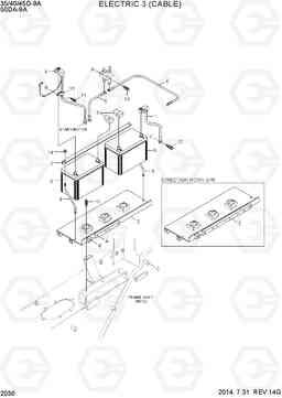
Код подсистемы:2030
Наименование:ELECTRIC 3
Версия:2014. 7.31 REV.14G
ELECTRIC 3 35/40/45D-9A,50DA-9A

Поз. | Код | Наименование | Кол | Прим. | |
---|---|---|---|---|---|
1 | 21FV-31020 | CABLE(BATT(-)-EARTH) | 1 | ||
10 | S035-061526 | Болт | 2 | ||
11 | S035-081526 | Болт | 1 | ||
12 | S037-102022 | Болт | 1 | ||
13 | S037-102026 | Болт | 3 | ||
14 | S285-06100B | гайка с фланцем | 2 | ||
15 | S543-140002 | Зажим трубки | 1 | ||
2 | 21FV-42013 | HOLDER-BATTERY | 1 | ||
2 | 21FV-53040 | HOLDER-BATTERY | 1 |
35,W/ KNOB SWITCH
|
|
2 | 21FV-53040 | HOLDER-BATTERY | 1 |
40,W/ KNOB SWITCH
|
|
2 | 21FV-53040 | HOLDER-BATTERY | 1 |
45,W/ KNOB SWITCH
|
|
2 | 21FV-53040 | HOLDER-BATTERY | 1 |
50,W/ KNOB SWITCH
|
|
3 | 21FV-42021 | CLAMP-BATTERY | 1 | ||
4 | 21FV-51001 | CABLE(BATT(+)-S/MOTOR) | 1 | ||
5 | 21FV-51050 | CABLE(HEATER RY-STARTER) | 1 | ||
6 | 21FV-51060 | CABLE(HEATER RY-HEAT) | 1 | ||
7 | 21FV-51070 | CABLE(B(+)-B(-)) | 1 | ||
8 | F11820010 | Батарея аккумуляторная | 2 | ||
9 | FAC0800140 | Зажим войлок MTG | 2 |