S/SHIFT & F/POSITIONER (V-MAST, IND) погрузчика дизельного Hyundai 80D-7E
S/SHIFT & F/POSITIONER (V-MAST, IND) погрузчика дизельного Hyundai 80D-7E со списком деталей и комплектацией. Каждую деталь можно приобрести в наличии и под заказ с дотавкой по всей России
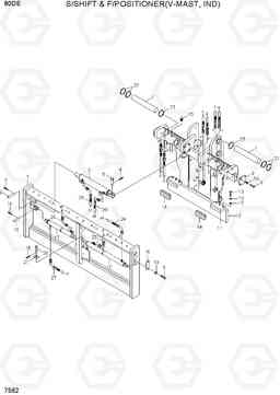
Код подсистемы:7562
Наименование:S/SHIFT & F/POSITIONER (V-MAST, IND)
Версия:
S/SHIFT & F/POSITIONER (V-MAST, IND) 80D-7E

Поз. | Код | Наименование | Кол | Прим. | |
---|---|---|---|---|---|
* | 67FQ-30120 | INT S-SHIFT & F-POSITION | 1 | ||
10 | JKSW-H-0016 | Шайба пружинная | 26 | ||
11 | ISS5-001-A05 | HOOK | 2 | ||
12 | ISS5-001-A06 | Вставка | 4 | ||
13 | JKHB-H-1670 | Болт с шестигранной головкой (под шестигранник) | 6 | ||
14 | ISS5-001-A07 | SLIDING PAD | 2 | ||
15 | JKGN-00T1 | GREASE NIPPLE | 2 | ||
16 | ISS5-001-A08 | COVER-FORK BAR | 2 | ||
17 | ISS5-027-Z00 | цилиндр F / позиционер | 2 | ||
18 | 66FQ-00430 | R контактный | 4 | ||
19 | 66FQ-00420 | штырьковый цоколь | 2 | ||
20 | 66FQ-00440 | контактный стержень | 2 | ||
21 | 68FQ-70210 | кронштейн штока цилиндра | 2 | ||
22 | JK0B-759080 | BEARING-OILLES | 4 | ||
23 | JKSR-H-0090 | STOP RING | 2 | ||
24 | P933-064025 | Шланг в сборе | 1 | ||
25 | P933-064016 | Шланг в сборе | 1 | ||
26 | P933-064016 | Шланг в сборе | 1 | ||
27 | P933-064025 | Шланг в сборе | 1 | ||
28 | P933-064003 | Шланг в сборе | 1 | ||
29 | P933-064005 | Шланг в сборе | 1 | ||
3 | ISS5-001-Z00 | CYLINDER-SIDE SHIFT | 1 | ||
4 | JKRP-0020 | R-PIN | 2 | ||
5 | JKSS-D4-0301P | штырьковый цоколь цилиндр | 1 | ||
6 | JKSS-D4-0302P | контактный шток цилиндра | 1 | ||
7 | ISS5-001-A03 | BAR-SHIFTING | 2 | ||
8 | ISS5-001-A04 | COVER-SHIFT | 4 | ||
9 | JKHB-H-1660 | Болт с шестигранной головкой (под шестигранник) | 20 | ||
N | @ | NOT SUPPLIED PARTS | AR | ||
N1 | 67FQ-30300 | CARRIAGE WA | 1 | ||
N2 | SS5-025-C01 | SIDE SHIFT WA | 1 |