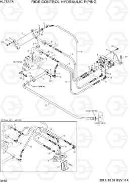
RIDE CONTROL HYDRAULIC PIPING фронтального погрузчика колесного Hyundai HL757-7A
RIDE CONTROL HYDRAULIC PIPING фронтального погрузчика колесного Hyundai HL757-7A со списком деталей и комплектацией. Каждую деталь можно приобрести в наличии и под заказ с дотавкой по всей России
Код подсистемы:3160
Наименование:RIDE CONTROL HYDRAULIC PIPING
Версия:2011.10.31 REV.11K
RIDE CONTROL HYDRAULIC PIPING HL757-7A

Поз. | Код | Наименование | Кол | Прим. | |
---|---|---|---|---|---|
* | 30LD-97000 | RIDE CONTROL KIT | 1 | ||
1 | @ | RIDE CONTROL VALVE | 1 |
SEE 4110
|
|
10 | P920-122015 | Шланг в сборе | 1 | ||
10 | P920-122014 | Шланг в сборе | 1 | ||
11 | P920-124014 | Шланг в сборе | 1 | ||
11 | P920-124015 | Шланг в сборе | 1 | ||
12 | P700-202331 | Рукав высокого давления (РВД) | 1 | ||
13 | X500-210015 | Разъем | 1 | ||
13 | X520-110018 | Штуцер 90 orfs | 2 | ||
14 | X500-310004 | Разъем | 1 | ||
15 | X520-110004 | Штуцер 90 orfs | 1 | ||
16 | 31LD-90200 | Колено 90 | 3 | ||
16 | X500-110019 | Разъем | 2 | ||
17 | X530-110004 | Штуцер | 1 | ||
17 | X500-110004 | Разъем | 1 | ||
18 | 31LC-90220 | TEE | 1 | ||
19 | 31L7-90030 | Датчик давления (переключатель, реле) | 1 |
RIDE CONTROL
|
|
2 | 31LB-94000 | Гидроаккумулятор | 1 | ||
20 | P392-120000 | Шайба медная | 1 | ||
25 | Y171-027004 | Кольцо уплотнительное (О-кольцо) | 1 | ||
26 | S037-102556 | Болт | 2 | ||
26 | S037-122556 | Болт | 2 | ||
27 | S037-123056 | Болт | 3 | ||
28 | S017-120656 | Болт с шестигранной головкой (под шестигранник) | 4 | ||
29 | S109-100606 | Болт с шестигранной головкой (под шестигранник) | 4 | ||
3 | 31LD-90111 | Трубка | 1 | ||
30 | S441-120006 | Шайба | 4 | ||
30 | S441-12000B | Шайба | 4 | ||
31 | 31N8-40240 | CONNECTOR-ORFS.LONG | 1 | ||
4 | 31LD-90121 | Трубка | 1 | ||
5 | 31LD-90180 | Трубка | 1 | ||
6 | 31LD-90190 | Пластина | 1 | ||
6 | 31LD-90910 | Пластина | 1 | ||
7 | 31LB-90340 | Зажим | 2 | ||
8 | P910-124011 | Шланг в сборе | 1 | ||
8 | P910-124009 | Шланг в сборе | 1 | ||
9 | P910-124010 | Шланг в сборе | 1 | ||
A | S631-029004 | Кольцо уплотнительное (О-кольцо) | 1 | ||
B | S631-024004 | Кольцо уплотнительное (О-кольцо) | 8 | ||
C | S621-018001 | О кольцо | 3 | ||
D | S611-023001 | Кольцо уплотнительное (О-кольцо) | 4 | ||
R1-23 | @ | DECAL-RIDE CONTROL | 1 |
SEE 8020
|
|
R17 | @ | RELAY-4P | 1 |
SEE 2020
|
|
R24 | @ | SWITCH-RIDE CONTROL | 1 |
SEE 2010
|
|
R6 | @ | HARNESS-RIDE CONTROL | 1 |
SEE 2040
|