CAB ELECTRIC 4 фронтального погрузчика колесного Hyundai HL757TM-9A
CAB ELECTRIC 4 фронтального погрузчика колесного Hyundai HL757TM-9A со списком деталей и комплектацией. Каждую деталь можно приобрести в наличии и под заказ с дотавкой по всей России
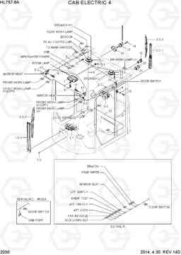
Код подсистемы:2030
Наименование:CAB ELECTRIC 4
Версия:2014. 4.30 REV.14D
CAB ELECTRIC 4 HL757TM-9A

Поз. | Код | Наименование | Кол | Прим. | |
---|---|---|---|---|---|
1 | 21LM-37000 | FR стеклоочиститель комплект двигателя в сборе | 1 | ||
1-1 | 21LM-37010 | электродвигатель стеклоочистителя | 1 | ||
1-2 | 21LM-37020 | Рычаг и щетка стеклоочистителя | 1 | ||
1-2-1 | 21LM-37050 | рычаг стеклоочистителя в сборе | 1 | ||
1-2-2 | 21LM-37060 | Щетка стеклоочистителя в сборе | 1 | ||
1-3 | 24L3-41500 | клапан стеклоочистителя | 1 | ||
10 | S161-040106 | Винт с крестообразным шлицем | 10 | ||
11 | S411-040006 | Шайба пружинная | 10 | ||
12 | 21N6-10410 | ANTENA | 1 | ||
13 | 21LB-20401 | Спикер сборе | 2 | ||
14 | S161-040126 | Винт с крестообразным шлицем | 2 | ||
15 | S035-082026 | Болт | 6 | ||
16 | S553-035140 | Зажим | 7 | ||
17 | S593-000902 | клип жгут | 6 | ||
18 | 21LM-01420 | розетка | 1 |
BEACON LAMP
|
|
19 | 21N6-10100 | пластина антенны | 1 | ||
2 | 21LM-37100 | р-р стеклоочистителя комплект двигателя в сборе | 1 | ||
2-1 | 21LM-37110 | электродвигатель стеклоочистителя | 1 | ||
2-2 | 21LM-37120 | Рычаг и щетка стеклоочистителя | 1 | ||
2-2-1 | 24L3-41200 | рычаг стеклоочистителя заднего | 1 | ||
2-2-2 | 21M8-50300 | Щетка заднего стеклоочистителя | 1 | ||
2-3 | 24L3-41500 | клапан стеклоочистителя | 1 | ||
20 | 21U6-07330 | крышка маяк | 1 |
STD
|
|
21 | S552-035146 | Зажим | 1 |
STD
|
|
22 | 21LQ-02260 | Жгут авто смазка | 1 | ||
3 | S880-125040 | Уплотнительная втулка | 1 |
REMOTE CNTL
|
|
4 | E123-3022 | Дверной выключатель | 1 | ||
5 | 21LL-01071 | Жгут кабины | 1 | ||
5 | 21LL-01072 | HARNESS-CAB | 1 | ||
5 | 21LL-01073 | Электропроводка кабины | 1 | ||
5-1 | S880-132060 | Уплотнительная втулка | 1 | ||
5-2 | S880-132040 | Уплотнительная втулка | 2 | ||
6 | 21LM-01091 | Жгут климатической, обогреватель | 1 | ||
7 | 21Q4-50101 | лампа освещения салона | 1 | ||
7-1 | 21E1-49690 | Номер лампа лампа | 1 |
NOT SHOWN
|
|
8 | S411-050006 | Шайба пружинная | 2 | ||
9 | S161-050166 | Болт | 2 |