Система переключения передач фронтального погрузчика колесного Hyundai HL760-9A(W/HANDLER)
Система переключения передач фронтального погрузчика колесного Hyundai HL760-9A(W/HANDLER) со списком деталей и комплектацией. Каждую деталь можно приобрести в наличии и под заказ с дотавкой по всей России
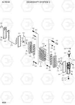
Код подсистемы:6520
Наименование:GEAR SHIFT SYSTEM 2
Версия:
GEAR SHIFT SYSTEM 2 HL760-9A(W/HANDLER)

Поз. | Код | Наименование | Кол | Прим. | |
---|---|---|---|---|---|
010 | ZGAQ-04113 | шарикоподшипник угловой | 1 | ||
012 | ZGAQ-00230 | Винт заглушка | 8 | ||
012 | ZGAQ-00231 | Кольцо уплотнительное (О-кольцо) | 8 | ||
020 | ZGAQ-00617 | ORIFICE | 6 | ||
030 | ZGAQ-00618 | Поршень | 6 | ||
040 | ZGAQ-00619 | Пружина сжатия | 6 | ||
050 | ZGAQ-00620 | Поршень | 6 | ||
060 | ZGAQ-00621 | Пружина сжатия | 6 | ||
070 | ZGAQ-00622 | Поршень | 1 | ||
080 | ZGAQ-00623 | Пружина сжатия | 1 | ||
090 | ZGAQ-01455 | управляющий поршень | 1 | ||
110 | ZGAQ-00625 | Пружина сжатия | 1 | ||
150 | ZGAQ-01578 | Прокладка | 1 | ||
160 | ZGAQ-00627 | Картер (корпус) | 1 | ||
170 | ZGAQ-00628 | Винт | 18 | ||
180 | ZGAQ-00629 | Регулятор давления | 3 | ||
180-1 | ZGAQ-00630 | Кольцо уплотнительное (О-кольцо) | 3 | ||
190 | ZGAQ-00631 | крепеж | 3 | ||
200 | ZGAQ-00632 | Винт | 3 | ||
210 | ZGAQ-01578 | Прокладка | 1 | ||
220 | ZGAQ-00627 | Картер (корпус) | 1 | ||
230 | ZGAQ-00628 | Винт | 18 | ||
240 | ZGAQ-00629 | Регулятор давления | 3 | ||
240-1 | ZGAQ-00630 | Кольцо уплотнительное (О-кольцо) | 3 | ||
250 | ZGAQ-00631 | крепеж | 3 | ||
260 | ZGAQ-00632 | Винт | 3 | ||
270 | ZGAQ-00633 | Жгут проводов | 1 | ||
280 | ZGAQ-01579 | Прокладка | 1 | ||
290 | ZGAQ-04124 | Корпус подключений | 1 | ||
300 | ZGAQ-00628 | Винт | 14 | ||
303 | ZGAQ-04125 | Кольцо | 3 | ||
304 | ZGAQ-04126 | Регулятор давления | 1 | ||
305 | ZGAQ-04127 | Винт | 2 | ||
307-10 | ZGAQ-00970 | винт во втулке | 2 | ||
307-20 | ZGAQ-00971 | Кольцо уплотнительное (О-кольцо) | 2 | ||
310 | ZGAQ-01579 | Прокладка | 1 | ||
320 | ZGAQ-00636 | Крышка | 1 | ||
330 | ZGAQ-00637 | Зажим фиксирующий | 1 | ||
340 | ZGAQ-00628 | Винт | 14 |