QUICK-TACH минипогрузчика серии T Hyundai HSL500T
QUICK-TACH минипогрузчика серии T Hyundai HSL500T со списком деталей и комплектацией. Каждую деталь можно приобрести в наличии и под заказ с дотавкой по всей России
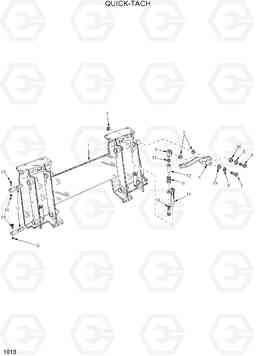
Код подсистемы:1013
Наименование:QUICK-TACH
Версия:
QUICK-TACH HSL500T

Поз. | Код | Наименование | Кол | Прим. | |
---|---|---|---|---|---|
YCAC-00426 | GREASE FITTING-STRAIGHT | 2 | |||
1 | YCAC-02031 | QUICK-TACH COMPLETE | 1 |
WITHOUT PIN
|
|
10 | YCAC-01866 | Пружина | 2 | ||
11 | YCAC-02203 | LH PIN-LOCK ASSY | 1 | ||
11 | YCAC-02204 | RH PIN-LOCK ASSY | 1 | ||
12 | YCAC-01064 | Втулка | 2 | ||
13 | YCAC-00427 | Болт с шестигранной головкой (под шестигранник) | 2 | ||
14 | YCAC-01116 | Палец | 4 | ||
15 | YCAC-00358 | Болт с шестигранной головкой (под шестигранник) | 4 | ||
16 | YCAC-00359 | NUT-LOCK 5/16" | 4 | ||
17 | YCAC-00435 | Гайка | 2 | ||
18 | YCAC-01017 | Шайба | 2 | ||
19 | YCAC-00436 | Стопорная шайба (кольцо) | 1 | ||
2 | YCAC-00435 | Гайка | 4 | ||
3 | YCAC-00472 | BUSHING-STABILIZER BAR | 4 | ||
4 | YCAC-01117 | HANDLE-RH | 1 | ||
4 | YCAC-01118 | HANDLE-LH | 1 | ||
5 | YCAC-01017 | Шайба | 1 | ||
6 | YCAC-00656 | Болт с шестигранной головкой (под шестигранник) | 1 | ||
7 | YCAC-00361 | Болт с шестигранной головкой (под шестигранник) | 1 | ||
8 | YCAC-00493 | Плоская шайба | 2 | ||
9 | YCAC-00978 | LINKAGE BLOCK BAR | 2 |