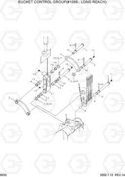
Блок управления ковша (для длинной стрелы экскаватора) экскаватора гусеничного Hyundai R290LC-3
Блок управления ковша (для длинной стрелы экскаватора) экскаватора гусеничного Hyundai R290LC-3 со списком деталей и комплектацией. Каждую деталь можно приобрести в наличии и под заказ с дотавкой по всей России
Код подсистемы:6033
Наименование:BUCKET CONTROL GROUP(#1086-, LONG REACH)
Версия:2000.7.10 REV.14
BUCKET CONTROL GROUP(#1086-, LONG REACH) R290LC-3

Поз. | Код | Наименование | Кол | Прим. | |
---|---|---|---|---|---|
* | @ | CONTROL LINKAGE | 1 |
SEE 6021
|
|
1 | 61E3-22030 | CONTROL ROD ASSY | 1 | ||
1-1 | 61E3-22040 | CONTROL ROD | 1 | ||
1-2 | X124-652070 | Втулка | 2 | ||
1-3 | X114-652072 | Втулка | 2 | ||
1-4 | S700-065206 | Кольцо | 4 | ||
1-5 | S651-810002 | Масленка | 3 | ||
10 | 61E3-1191 | SPRING-LOCK | 4 | ||
11 | S651-810002 | Масленка | 3 | ||
12 | S390-065110 | SHIM-ROUND(0.5 | 2 | ||
13 | S391-065110 | Прокладка | 1 | ||
14 | S392-065110 | Прокладка | 1 | ||
15 | S390-065120 | SHIM-ROUND(0.5㎜) | 4 | ||
16 | S391-065120 | Прокладка | 2 | ||
17 | S392-065120 | Прокладка | 2 | ||
2 | 61E3-22100 | Тяга трапеции, левая | 1 | ||
3 | 61E3-22110 | Тяга трапеции, правая | 1 | ||
4 | 61E3-1108 | PIN-ATTACH | 1 | ||
5 | 61E3-12060 | Палец | 1 | ||
6 | 61E3-1106 | PIN-ATTACH | 1 | ||
7 | 61E3-1107 | PIN-ATTACH | 1 | ||
8 | E161-3052 | Кольцо уплотнительное (О-кольцо) | 4 | ||
9 | 61E3-1190 | контактный остановка | 4 |