Топливная система (без предфильтра) экскаватора гусеничного Hyundai R380LC-9MH
Топливная система (без предфильтра) экскаватора гусеничного Hyundai R380LC-9MH со списком деталей и комплектацией. Каждую деталь можно приобрести в наличии и под заказ с дотавкой по всей России
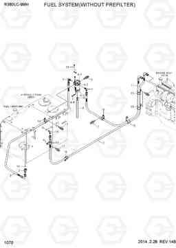
Код подсистемы:1070
Наименование:FUEL SYSTEM(WITHOUT PREFILTER)
Версия:2014. 2.28 REV.14B
FUEL SYSTEM(WITHOUT PREFILTER) R380LC-9MH

Поз. | Код | Наименование | Кол | Прим. | |
---|---|---|---|---|---|
10 | S520-015000 | Зажим | 1 | ||
11 | 11Q9-50020 | Шланг топливный | 1 | ||
12 | 11NA-53031 | Шланг топливный | 1 | ||
13 | P020-110003 | Колено 90 | 1 | ||
14 | S631-018004 | Кольцо уплотнительное (О-кольцо) | 2 | ||
15 | 31L7-10220 | Зажим трубки | 3 | ||
16 | 31L7-10340 | модули зажим для труб | 4 | ||
17 | S037-101526 | Болт | 4 | ||
18 | 21QB-23500 | HARNESS FUEL WARMER | 1 |
D/F/WARMER
|
|
2 | 11Q4-50010 | отсечной клапан топлива | 1 | ||
3 | 11Q9-50040 | Шланг топливный | 1 | ||
4 | 11QA-71000 | Фильтр топливный в сборе | 1 |
S/F/WARMER
|
|
4 | 11QA-73000 | Фильтр топливный в сборе | 1 |
D/F/WARMER
|
|
4-1 | 11QA-71010 | HEAD ASSY | 1 | ||
4-2 | 11QA-71040 | Элемент фильтра | 1 | ||
4-3 | 11QA-71050 | BOWL ASSY | 1 |
S/F/WARMER
|
|
4-3 | 11QA-71030 | BOWL ASSY | 1 |
D/F/WARMER
|
|
4-4 | 11QA-71020 | WIF SENSOR ASSY | 1 | ||
5 | S037-102526 | Болт | 2 | ||
7 | 11N8-50060 | Колено 90 | 2 | ||
9 | 11M8-50030 | Рукав высокого давления (РВД) | 1 |