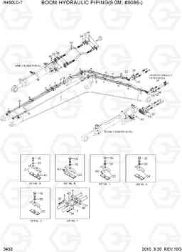
BOOM HYDRAULIC PIPING(9.0M, #0086-) экскаватора гусеничного Hyundai R450LC-7
BOOM HYDRAULIC PIPING(9.0M, #0086-) экскаватора гусеничного Hyundai R450LC-7 со списком деталей и комплектацией. Каждую деталь можно приобрести в наличии и под заказ с дотавкой по всей России
Код подсистемы:3433
Наименование:BOOM HYDRAULIC PIPING(9.0M, #0086-)
Версия:2010. 9.30 REV.10G
BOOM HYDRAULIC PIPING(9.0M, #0086-) R450LC-7

Поз. | Код | Наименование | Кол | Прим. | |
---|---|---|---|---|---|
* | @ | BOOM HYD PIPING(9.0M) | 1 | ||
14 | 31NB-52210 | PIPE WA-BK/CYL BASE | 1 | ||
14 | 31NB-52211 | PIPE WA-BK/CYL BASE | 1 | ||
18 | P680-207427 | Шланг в сборе | 2 | ||
21 | 31NB-51340 | зажим в сборе | 7 | ||
22 | 31NB-51320 | зажим в сборе | 5 | ||
23 | 31NB-51270 | зажим в сборе | 2 | ||
24 | 31NB-51310 | зажим в сборе | 2 | ||
33 | P174-200106 | фланец гидрокси, сплит | 24 | ||
34 | S109-120506 | Болт с шестигранной головкой (под шестигранник) | 48 | ||
36 | S017-160752 | Болт с шестигранной головкой (под шестигранник) | 23 | ||
36 | S017-16080A | Болт с шестигранной головкой (под шестигранник) с покрытием | 23 | ||
39 | S411-160002 | Шайба пружинная | 23 | ||
4 | 31NB-52110 | PIPE WA-BK/CYL,ROD | 1 | ||
4 | 31NB-52111 | PIPE WA-BK/CYL,ROD | 1 | ||
40 | Y171-027004 | Кольцо уплотнительное (О-кольцо) | 14 | ||
43 | 31N5-50240 | Распорная трубка | 10 | ||
5 | 31NB-51120 | PIPE WA-BK/CYL,ROD | 1 | ||
5 | 31NB-51121 | PIPE WA-BK/CYL,ROD | 1 | ||
5 | 31NB-51122 | PIPE WA-BK/CYL,ROD | 1 | ||
6 | 31NB-51130 | PIPE WA-BK/CYL,BASE | 1 | ||
6 | 31NB-51131 | PIPE WA-BK/CYL,BASE | 1 | ||
6 | 31NB-51132 | PIPE WA-BK/CYL,BASE | 1 | ||
7 | 31NB-52140 | PIPE WA-A/CYL,BASE | 1 | ||
7 | 31NB-52141 | PIPE WA-A/CYL,BASE | 1 | ||
8 | 31NB-52150 | PIPE WA-A/CYL ROD | 1 | ||
8 | 31NB-52151 | PIPE WA-A/CYL ROD | 1 |