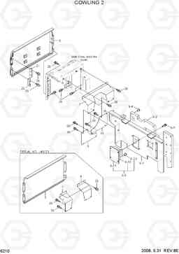
COWLING 2 экскаватора гусеничного Hyundai R450LC-7A
COWLING 2 экскаватора гусеничного Hyundai R450LC-7A со списком деталей и комплектацией. Каждую деталь можно приобрести в наличии и под заказ с дотавкой по всей России
Код подсистемы:6210
Наименование:COWLING 2
Версия:2008. 5.31 REV.8E
COWLING 2 R450LC-7A

Поз. | Код | Наименование | Кол | Прим. | |
---|---|---|---|---|---|
10 | 73NB-54401 | SCREEN-PUMP(B/R) | 1 | ||
21 | 71N8-57101 | Поддержка T / крышка | 1 | ||
22 | 71N8-57200 | Поддержка T / крышка | 1 | ||
26 | S037-122556 | Болт | 28 | ||
26 | S037-122556 | Болт | 16 | ||
30 | S037-122056 | Болт | 1 | ||
30 | S037-122066 | Болт | 1 | ||
37 | S037-122556 | Болт | 12 | ||
5 | 71NB-53162 | Крышка бака | 1 | ||
5 | 71NB-53163 | Крышка бака | 1 | ||
5 | 71NB-53164 | Крышка бака | 1 | ||
6 | 73NB-54101 | SCREEN ASSY | 1 | ||
6 | 73NB-54102 | SCREEN ASSY | 1 | ||
6-1 | 73NB-54111 | SCREEN WA | 1 | ||
6-1 | 73NB-54112 | SCREEN WA | 1 | ||
6-2 | 73NB-54121 | SPONGE | 1 | ||
6-3 | 71NB-54600 | COVER ASSY | 1 | ||
6-31 | 71NB-54610 | Пластина | 1 | ||
6-32 | 71NB-54620 | SPONGE | 1 | ||
6-33 | 71EM-51580 | Болт | 2 | ||
6-4 | 71EM-51580 | Болт | 15 | ||
6-5 | S037-122552 | Болт | 4 | ||
7 | 73NB-54701 | SCREEN-PUMP(T/F) | 1 | ||
7 | 73NB-54702 | SCREEN-PUMP(T/F) | 1 | ||
8 | 73NB-54801 | SCREEN-PUMP(T/R) | 1 | ||
9 | 73NB-54301 | SCREEN-PUMP(B/F) | 1 |