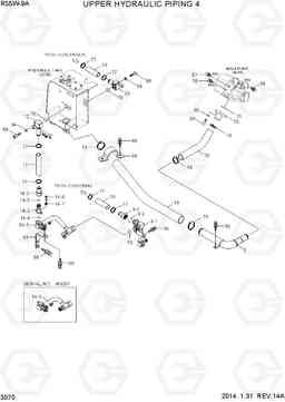
UPPER HYDRAULIC PIPING 4 экскаватора колесного Hyundai R55W-9A
UPPER HYDRAULIC PIPING 4 экскаватора колесного Hyundai R55W-9A со списком деталей и комплектацией. Каждую деталь можно приобрести в наличии и под заказ с дотавкой по всей России
Код подсистемы:3070
Наименование:UPPER HYDRAULIC PIPING 4
Версия:2014. 1.31 REV.14A
UPPER HYDRAULIC PIPING 4 R55W-9A
| Поз. | Код | Наименование | Кол | Прим. | |
|---|---|---|---|---|---|
| 10 | 31M9-10760 | Трубка в сборе | 1 | ||
| 101 | 21EA-50260 | упаковка температура SW | 1 | ||
| 102 | 21EN-40100 | Отправитель температура | 1 | ||
| 12 | 31M9-15270 | Трубка в сборе | 1 | ||
| 13 | 31M8-10460YL | Трубка в сборе | 1 | ||
| 14 | 31M9-12221 | обратке к югу в сборе | 1 | ||
| 14 | 32M9-12220 | RETURN PIPE SUB ASSY | 1 | ||
| 14-1 | 31M9-15282 | Трубка в сборе | 1 | ||
| 14-1 | 32M9-15280 | Трубка в сборе | 1 | ||
| 14-2 | 31M9-10780 | FLANGE ASSY | 1 | ||
| 14-3 | 31EE-10510 | обратный клапан | 1 | ||
| 14-4 | S631-029004 | Кольцо уплотнительное (О-кольцо) | 1 | ||
| 14-5 | Y171-024004 | Кольцо уплотнительное (О-кольцо) | 1 | ||
| 14-6 | S109-100406 | Болт с шестигранной головкой (под шестигранник) | 1 | ||
| 14-7 | S411-100006 | Шайба пружинная | 1 | ||
| 16 | P760-052015 | Рукав высокого давления (РВД) | 2 | ||
| 17 | P760-052016 | Рукав высокого давления (РВД) | 1 | ||
| 19 | 31M9-10230 | всасывающий шланг | 1 | ||
| 20 | 31M8-10310 | всасывающий шланг | 1 | ||
| 56 | 31EK-11130 | COUPLING-SCREW | 3 | ||
| 57 | 31M6-50860 | COUPLING-SCREW | 1 | ||
| 60 | 31M8-10661GY | Кронштейн трубы | 1 | ||
| 70 | S621-021001 | О кольцо | 1 | ||
| 75 | S631-045001 | Кольцо уплотнительное (О-кольцо) | 1 | ||
| 76 | S632-035001 | Кольцо уплотнительное (О-кольцо) | 2 | ||
| 77 | 31Q6-10810 | U-образный болт (скоба, П образный) / хомут / зажим | 6 | ||
| 78 | 31Q6-10830 | U-образный болт (скоба, П образный) / хомут / зажим | 2 | ||
| 79 | 31Q6-10840 | U-образный болт (скоба, П образный) / хомут / зажим | 2 | ||
| 8 | 31M9-10240 | PIPE-SUCTION | 1 | ||
| 86 | S037-102526 | Болт | 8 | ||
| 88 | S109-100606 | Болт с шестигранной головкой (под шестигранник) | 8 | ||
| 89 | S109-120356 | Болт с шестигранной головкой (под шестигранник) | 4 | ||
| 9 | 31M9-12241 | обратке к югу в сборе | 1 | ||
| 9-1 | 31M9-10262 | Трубка в сборе | 1 | ||
| 9-2 | 31M5-52111 | Клапан обратный | 1 | ||
| 9-3 | S631-029004 | Кольцо уплотнительное (О-кольцо) | 1 | ||
| 94 | S411-100006 | Шайба пружинная | 8 | ||
| 95 | S411-120006 | Шайба пружинная | 4 | ||
| 98 | 31M9-10910 | Зажим | 1 |

