Блок управления ковша экскаватора гусеничного Hyundai R140LC-9S(BRAZIL)
Блок управления ковша экскаватора гусеничного Hyundai R140LC-9S(BRAZIL) со списком деталей и комплектацией. Каждую деталь можно приобрести в наличии и под заказ с дотавкой по всей России
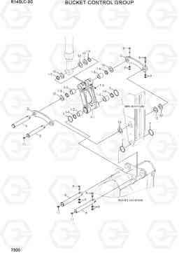
Код подсистемы:7300
Наименование:BUCKET CONTROL GROUP
Версия:
BUCKET CONTROL GROUP R140LC-9S(BRAZIL)

Поз. | Код | Наименование | Кол | Прим. | |
---|---|---|---|---|---|
N | @ | NOT SUPPLIED PARTS | AR | ||
1 | 61Q4-40011 | управляющий стержень в сборе | 1 | ||
1-2 | 66N4-04000 | Втулка | 2 | ||
1-3 | 66N4-05000 | Втулка | 2 | ||
1-4 | Y020-065111 | Пыльник | 2 | ||
1-5 | Y020-070011 | Пыльник | 4 | ||
1-6 | S651-810002 | Масленка | 2 | ||
10 | S993-070130 | Шайба | 4 | ||
11 | S651-810002 | Масленка | 3 | ||
12 | S991-070130 | Шайба полимерная | 2 | ||
13 | S993-065125 | Шайба | 2 | ||
14 | S991-065125 | Шайба полимерная | 1 | ||
2 | 61Q4-40022 | Тяга трапеции, правая | 1 | ||
3 | 61Q4-40032 | Тяга трапеции, левая | 1 | ||
4 | 61E3-12061 | Палец | 2 | ||
5 | 61N4-11091 | Палец | 1 | ||
6 | 61N4-11101 | Палец | 1 | ||
7 | E161-3052 | Кольцо уплотнительное (О-кольцо) | 4 | ||
8 | S017-161306 | Болт с шестигранной головкой (под шестигранник) | 4 | ||
9 | S205-16100B | Гайка | 8 | ||
N1-1 | 61Q4-40101 | управляющих стержней ва | 1 |