Handling boom мини экскаватора Volvo Construction Equipment EC35 TYPE 283
Handling boom мини экскаватора Volvo Construction Equipment EC35 TYPE 283 со списком деталей и комплектацией. Каждую деталь можно приобрести в наличии и под заказ с дотавкой по всей России
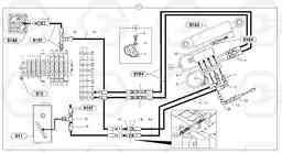
Код подсистемы:83030
Наименование:Handling boom
Версия:
Handling boom EC35 TYPE 283
| Поз. | Код | Наименование | Кол | Прим. | |
|---|---|---|---|---|---|
| 1 | PJ 6933154 | Handling | 1 | ||
| 10 | VOE 13955894 | Шайба | 1 |
MU8
|
|
| 10 | VOE 13955894 | Шайба | 1 |
MU8
|
|
| 11 | VOE 13933883 | Nipple | 1 | ||
| 11 | VOE 13933883 | Nipple | 1 | ||
| 12 | VOE 13933905 | Elbow nipple | 1 | ||
| 12 | VOE 13933905 | Elbow nipple | 1 | ||
| 13 | VOE 936824 | Hose assembly | 1 |
1/4"
|
|
| 13 | VOE 936824 | Hose assembly | 1 |
1/4"
|
|
| 14 | VOE 935424 | Nipple | 1 | ||
| 14 | VOE 935424 | Nipple | 1 | ||
| 15 | VOE 935428 | Lock nut | 1 |
9/16"
|
|
| 15 | VOE 935428 | Lock nut | 1 |
9/16"
|
|
| 16 | VOE 11802740 | Шланг | 1 |
1/4"
|
|
| 17 | VOE 11802819 | Шланг | 1 |
1/4"
|
|
| 18 | VOE 13933859 | T-nipple | 1 | ||
| 19 | VOE 11802909 | Pressure connection | 1 | ||
| 2 | VOE 13933883 | Nipple | 1 | ||
| 2 | VOE 13933883 | Nipple | 1 | ||
| 20 | VOE 11802908 | Elbow | 1 | ||
| 21 | VOE 13933859 | T-nipple | 1 | ||
| 24 | VOE 11803561 | Зажим | 1 | ||
| 3 | VOE 935665 | Nipple | 1 | ||
| 4 | VOE 11805453 | Трубка | 1 | ||
| 5 | VOE 11803581 | Elbow | 1 | ||
| 6 | VOE 11805455 | Трубка | 1 | ||
| 7 | VOE 11806257 | Cable clamp | 1 | ||
| 8 | PJ 4380042 | Болт | 1 |
HM8X16
|

