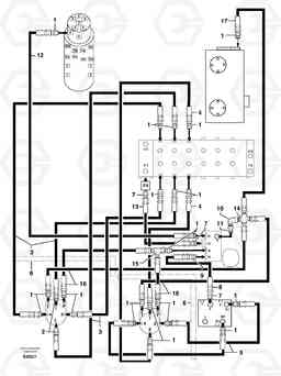
Hydr. circuit ( control's attachment ) мини экскаватора Volvo Construction Equipment EC70 TYPE 233
Hydr. circuit ( control's attachment ) мини экскаватора Volvo Construction Equipment EC70 TYPE 233 со списком деталей и комплектацией. Каждую деталь можно приобрести в наличии и под заказ с дотавкой по всей России
Код подсистемы:2642
Наименование:Hydr. circuit ( control's attachment )
Версия:
Hydr. circuit ( control's attachment ) EC70 TYPE 233
| Поз. | Код | Наименование | Кол | Прим. | |
|---|---|---|---|---|---|
| 1 | PJ 4750055 | Переходник масляного фильтра | 1 | ||
| 10 | PJ 4700015 | Elbow | 1 | ||
| 11 | PJ 4750044 | Переходник масляного фильтра | 1 | ||
| 12 | PJ 4192479 | Шланг | 1 |
1/4''
|
|
| 13 | PJ 4193088 | High pressure hose | 1 |
5/16"
|
|
| 14 | PJ 4720035 | Крестовина | 1 | ||
| 15 | PJ 4720008 | Tee | 1 | ||
| 16 | PJ 4192434 | Шланг | 1 |
1/4''
|
|
| 17 | PJ 4192449 | Шланг | 1 |
1/4''
|
|
| 2 | PJ 4770575 | Restricting valve | 1 |
ID = 0,6mm/0,0236in
|
|
| 3 | PJ 4192470 | Шланг | 1 |
1/4''
|
|
| 4 | VOE 11805956 | Hose assembly | 1 |
1/4''
|
|
| 5 | PJ 4192471 | Шланг | 1 |
1/4''
|
|
| 6 | VOE 11804752 | Shield Coil | 1 | ||
| 7 | VOE 11806380 | Переходник масляного фильтра | 1 | ||
| 8 | PJ 4193092 | High pressure hose | 1 |
5/16"
|
|
| 9 | PJ 4750342 | Переходник масляного фильтра | 1 |

