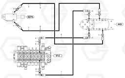
Hydr. circuit. ( dozer blade ) мини экскаватора Volvo Construction Equipment EC20B TYPE 272 XT/XTV
Hydr. circuit. ( dozer blade ) мини экскаватора Volvo Construction Equipment EC20B TYPE 272 XT/XTV со списком деталей и комплектацией. Каждую деталь можно приобрести в наличии и под заказ с дотавкой по всей России
Код подсистемы:36248
Наименование:Hydr. circuit. ( dozer blade )
Версия:
Hydr. circuit. ( dozer blade ) EC20B TYPE 272 XT/XTV
| Поз. | Код | Наименование | Кол | Прим. | |
|---|---|---|---|---|---|
| 1 | VOE 11806380 | Переходник масляного фильтра | 1 | ||
| 2 | VOE 11805881 | Шланг | 1 |
5/16''
|
|
| 3 | PJ 5140050 | Уплотнительная втулка | 1 | ||
| 4 | PJ 4700006 | Elbow | 1 | ||
| 5 | PJ 4750644 | Адаптер | 1 | ||
| 6 | PJ 4190336 | High pressure hose | 1 |
5/16''
|
|
| 7 | PJ 4193031 | High pressure hose | 1 |
5/16''
|

