Suspended seat мини экскаватора Volvo Construction Equipment ECR48C
Suspended seat мини экскаватора Volvo Construction Equipment ECR48C со списком деталей и комплектацией. Каждую деталь можно приобрести в наличии и под заказ с дотавкой по всей России
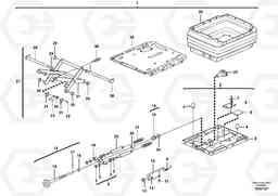
Код подсистемы:60906
Наименование:Suspended seat
Версия:
Suspended seat ECR48C
| Поз. | Код | Наименование | Кол | Прим. | |
|---|---|---|---|---|---|
| 1 | VOE 11802532 | Seat spring suspension | 1 | ||
| 10 | VOE 14526275 | Tape | 1 | ||
| 11 | ZM 2289762 | Пробка (заглушка) | 1 | ||
| 12 | PJ 7416002 | Шкив | 1 | ||
| 13 | ZM 2114010 | Guide | 1 | ||
| 14 | PJ 7417785 | Handle | 1 | ||
| 15 | PJ 7416004 | Stop, Shoulder | 1 | ||
| 16 | ZM 2906158 | Кольцо | 1 | ||
| 17 | VOE 14526276 | Втулка (распорная) | 1 | ||
| 19 | VOE 14526274 | Кронштейн | 1 | ||
| 2 | PJ 7417789 | Опора | 1 | ||
| 20 | VOE 14526887 | Втулка | 1 | ||
| 21 | VOE 11713300 | Пружина | 1 | ||
| 22 | VOE 14526272 | Shock absorber | 1 | ||
| 23 | PJ 7416006 | Вилка | 1 | ||
| 24 | ZM 2289753 | Шайба | 1 | ||
| 25 | PJ 7417788 | Bellow | 1 | ||
| 27 | VOE 14526283 | Рукоять | 1 | ||
| 28 | ZM 2289751 | Палец | 1 | ||
| 29 | PJ 7411851 | Втулка | 1 | ||
| 3 | PJ 7417787 | Set of washers | 1 | ||
| 30 | VOE 14526279 | Roller | 1 | ||
| 31 | PJ 7416003 | Apron | 1 | ||
| 32 | VOE 14526280 | Болт | 1 | ||
| 33 | PJ 7413454 | Пластина | 1 | ||
| 34 | PJ 7416008 | Пружина | 1 | ||
| 35 | VOE 14526281 | Болт | 1 | ||
| 36 | VOE 14526282 | Пружина | 1 | ||
| 4 | PJ 7417783 | Buffer | 1 | ||
| 5 | VOE 11713337 | Drive screw | 1 | ||
| 6 | VOE 14526268 | Пластина | 1 | ||
| 7 | VOE 11713338 | Rivet | 1 | ||
| 9 | ZM 2289763 | Пружина | 1 |

