Fuel Tank Installation дорожного (асфальтового) катка Volvo Construction Equipment PT125R S/N 197470-
Fuel Tank Installation дорожного (асфальтового) катка Volvo Construction Equipment PT125R S/N 197470- со списком деталей и комплектацией. Каждую деталь можно приобрести в наличии и под заказ с дотавкой по всей России
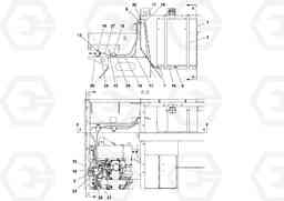
Код подсистемы:54127
Наименование:Fuel Tank Installation
Версия:43856756, S/N 200770-
Fuel Tank Installation PT125R S/N 197470-
| Поз. | Код | Наименование | Кол | Прим. | |
|---|---|---|---|---|---|
| RM 54636543 | Filler cap | 1 | |||
| 1 | RM 54544333 | Топливный бак (бензобак) | 1 | ||
| 10 | RM 95923322 | Lock nut | 1 | ||
| 10 | RM 95923322 | Lock nut | 1 | ||
| 12 | RM 96741053 | Шайба | 1 | ||
| 12 | RM 96741053 | Шайба | 1 | ||
| 15 | RM 59329227 | Адаптер | 1 | ||
| 16 | RM 59098772 | Hose assembly | 1 | ||
| 17 | RM 43952126 | Hose assembly | 1 | ||
| 18 | RM 95378873 | Hose clamp | 1 | ||
| 19 | RM 96702394 | Винт шестигранник | 1 | ||
| 19 | RM 96702394 | Винт шестигранник | 1 | ||
| 2 | RM 58848672 | Strap | 1 | ||
| 20 | RM 96741038 | Шайба | 1 | ||
| 20 | RM 96741038 | Шайба | 1 | ||
| 21 | RM 96704606 | Lock nut | 1 | ||
| 21 | RM 96704606 | Lock nut | 1 | ||
| 23 | RM 96705587 | Винт шестигранник | 1 | ||
| 23 | RM 96705587 | Винт шестигранник | 1 | ||
| 25 | RM 96740543 | Винт шестигранник | 1 | ||
| 27 | RM 13342894 | Шланг | 1 | ||
| 29 | RM 50274299 | Hose clamp | 1 | ||
| 29 | RM 50274299 | Hose clamp | 1 | ||
| 30 | RM 43954411 | Уплотнительная втулка | 1 | ||
| 6 | RM 95316972 | Адаптер | 1 | ||
| 7 | RM 95293403 | Соединитель | 1 | ||
| 7 | RM 95293403 | Соединитель | 1 | ||
| 8 | RM 59704403 | Уплотнительная втулка | 1 | ||
| 8 | RM 59704403 | Уплотнительная втулка | 1 | ||
| 9 | RM 54651153 | Fuel/water Sepe | 1 | ||
| 9 | RM 54651153 | Fuel/water Sepe | 1 |

