Side Arm Arrangement асфальтоукладчика гусеничного Volvo Construction Equipment PF4410 S/N 197449-
Side Arm Arrangement асфальтоукладчика гусеничного Volvo Construction Equipment PF4410 S/N 197449- со списком деталей и комплектацией. Каждую деталь можно приобрести в наличии и под заказ с дотавкой по всей России
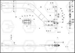
Код подсистемы:93986
Наименование:Side Arm Arrangement
Версия:SN 173288-, 15622632
Side Arm Arrangement PF4410 S/N 197449-
| Поз. | Код | Наименование | Кол | Прим. | |
|---|---|---|---|---|---|
| 1 | RM 20348959 | Кронштейн | 1 | ||
| 10 | RM 95928958 | Винт шестигранник | 1 | ||
| 10 | RM 95928958 | Винт шестигранник | 1 | ||
| 11 | RM 95931226 | Стопорная шайба (кольцо) | 1 | ||
| 11 | RM 95931226 | Стопорная шайба (кольцо) | 1 | ||
| 12 | RM 21144191 | Вставка | 1 | ||
| 13 | RM 21062559 | Roller | 1 | ||
| 14 | RM 95922423 | Шайба | 1 | ||
| 14 | RM 95922423 | Шайба | 1 | ||
| 15 | RM 95935201 | Винт шестигранник | 1 | ||
| 16 | RM 95943916 | Lock nut | 1 | ||
| 16 | RM 95943916 | Lock nut | 1 | ||
| 17 | RM 95922274 | Шайба | 1 | ||
| 17 | RM 95922274 | Шайба | 1 | ||
| 18 | RM 95931242 | Шайба | 1 | ||
| 18 | RM 95931242 | Шайба | 1 | ||
| 19 | RM 95934519 | Винт шестигранник | 1 | ||
| 20 | RM 20332052 | Side arm | 1 | ||
| 22 | RM 20317772 | Bar | 1 | ||
| 23 | RM 95920708 | Винт шестигранник | 1 | ||
| 23 | RM 95920708 | Винт шестигранник | 1 | ||
| 24 | RM 95922399 | Шайба | 1 | ||
| 24 | RM 95922399 | Шайба | 1 | ||
| 25 | RM 95984233 | Hhcs 1-8x6,gr 5 | 1 | ||
| 26 | RM 20210381 | Прокладка | 1 | ||
| 27 | RM 95922308 | Шайба | 1 | ||
| 27 | RM 95922308 | Шайба | 1 | ||
| 28 | RM 95931291 | Стопорная шайба (кольцо) | 1 | ||
| 29 | RM 95941084 | Hexagon nut | 1 | ||
| 29 | RM 95941084 | Hexagon nut | 1 | ||
| 3 | RM 20341160 | Вставка | 1 | ||
| 30 | RM 20942405 | Втулка | 1 | ||
| 30 | RM 20942405 | Втулка | 1 | ||
| 4 | RM 15623093 | Опора | 1 | ||
| 5 | RM 21080056 | Towing arm | 1 | ||
| 6 | RM 20329421 | Nose part | 1 | ||
| 7 | RM 95929097 | Болт | 1 | ||
| 8 | RM 95997706 | Стопорная шайба (кольцо) | 1 | ||
| 8 | RM 95997706 | Стопорная шайба (кольцо) | 1 | ||
| 9 | RM 95934386 | Винт шестигранник | 1 |

